Продається будинок пров. Карьерний, 4, Вінниця, Вінницька, Старе місто (№ 22-355-174)
Ціна: 138 000 $

Адреса: пров. Карьерний, 4, Вінниця, Вінницька, Старе місто
Характеристики
| Ціна: | 138 000 $ |
|---|---|
| № об'єкта: | 22-355-174 |
| Тип: | будинок |
| Поверхів: | 2 |
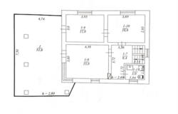
| Спалень: | 3 |
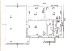
| Площа будинку: | 152.3 м2 |
| Ділянка: | 5.5 сот |
Опис
Сімейне життя може бути комфортним!
Пропонуємо чудовий будинок, якій будувався для себе, без економії на будівельних матеріалах!
Два повноцінних поверхи, три спальні на другому поверсі, та велика тераса, є мансардний поверх. На першому поверсі вітальня з каміном, кухня, велика ванна кімната, гардеробна, котельня, погріб.
В будинку електричне опалення, та система опалення каміном.
Оздоблення всередині завершено на 90%, чекаємо фасади кухні, дуже сучасні, фото дизайну додано.
Електроенергія 15 кВт.Вода з криниці, сучасна очисна система.
Вигрібна яма 25 м.куб.
Навіс на дві автівки. Гарна рівна ділянка, огороджена парканом камінь та дерево.
Поряд громадський транспорт, школа, 5 хвилин від будинку чудова зона відпочинку на озерах.
Пропозиція від власника, без додаткових витрат для покупця. Чекаємо вас на показ!
























